Description and floor plan
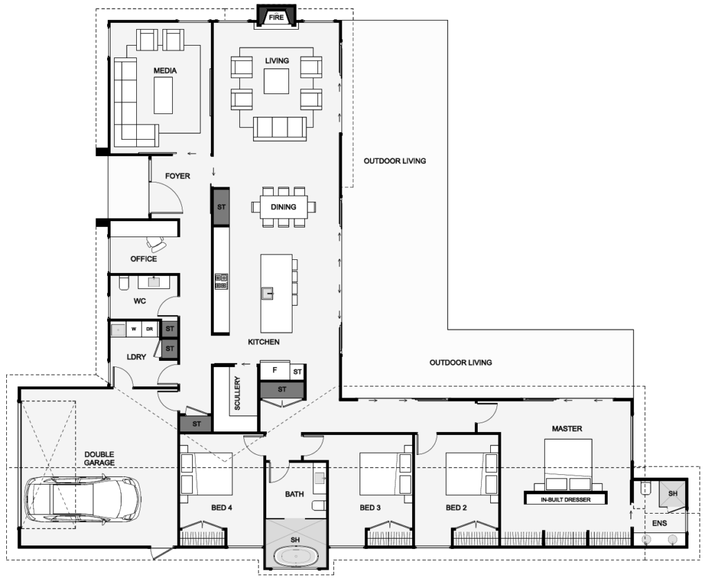
This home creates a large outdoor space with its unique “L’ shaped design. The spacious open plan living, dining, kitchen and scullery, all look out onto the large outdoor living area giving the home a family hub feel. A smart office positioned close to the entry makes working at home a real option. This effortless family home has everything and your family could want and then some!
