Description and floor plan
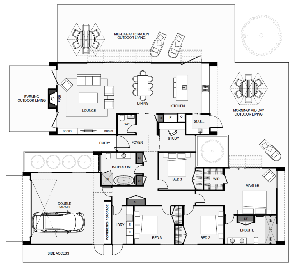
This modern four-bedroom home has three core parts that make up its strong geometric frontage. When entering the foyer, a study slider can be opened so visitors can enjoy a view through full-height glazing out to whatever centrepiece you desire. The dining takes in the morning sun from a large sliding window in the kitchen, which drops right down to the bench level. Extra features include the scullery, a workbench within the garage and a large ensuite. If you’re looking to build a bold home with a ton of features, this is it!
